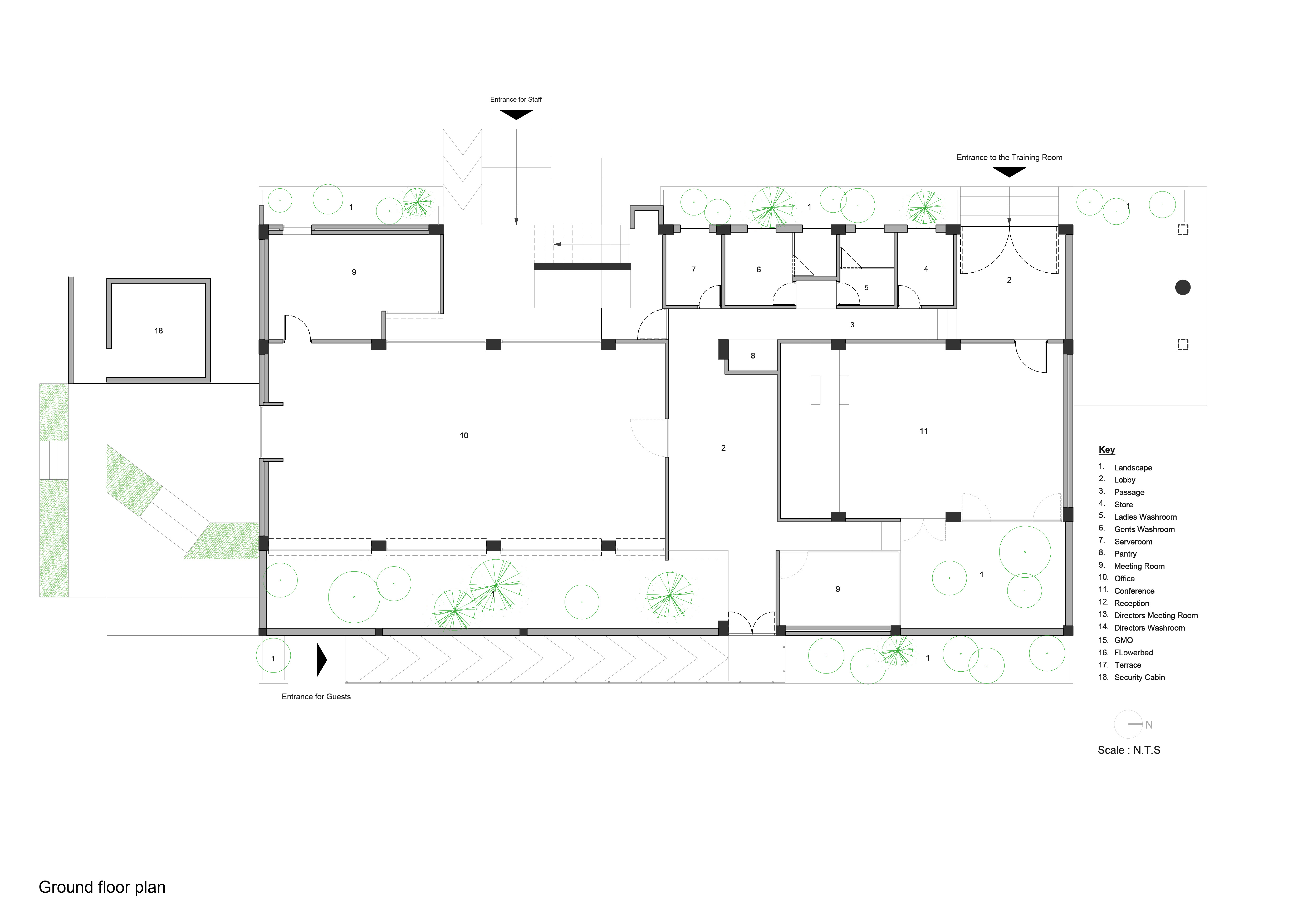
Located in the middle of Rann of Kutch in Dhordo, an office space was to be built for a bromine producing factory with a surrounding where it is difficult for any trees or plants to grow. Thus stemmed the idea to create a building which will let greenery grow on itself.
The office is a G+1 structure. It was planned to be constructed on an elevated platform consisting of various trays of height ranging from 2’-4’ for plants. These platform and trays and are insulated from the saline soil condition which will ensure plant growth.
The first floor has green terraces directly accessible from the working space and act as an breakout area for the staff.
The building has wall punctures of different sizes which creates an interesting elevation.
Project Name: Agrocel GMO, 2014-15
Client's Name: Agrocel Industries Pvt. Ltd
Location: Dhordo Gaum, White Rann, Kutch, Gujarat
Area: 8000 sqft
Type: Office Building
Status: Ongoing