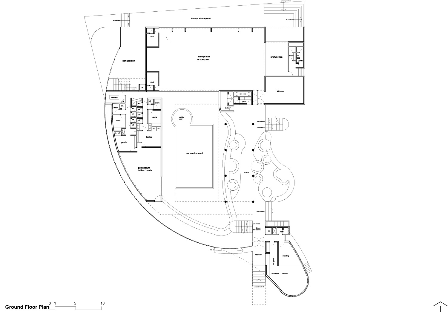
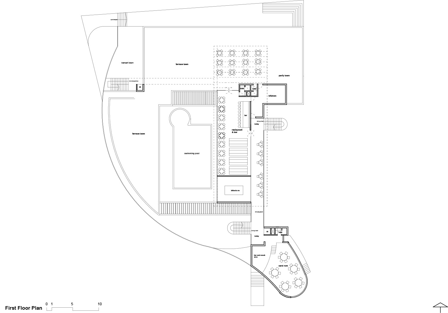
Andheri Club is a contemporary architectural masterpiece, thoughtfully nestled amidst meticulously landscaped surroundings. The design prioritizes a seamless integration of indoor and outdoor spaces, creating an environment that is both functional and visually harmonious.
A defining feature of the club is its unconventional building shape, a creative solution to the challenges posed by the restrictive plot area. The structure comprises smaller interconnected buildings, joined by bridges on the first floor. This innovative layout is enveloped by a curved screen, which not only adds a distinctive aesthetic but also ensures privacy for the occupants.
The landscaping is meticulously planned, with lush green areas offering a refreshing contrast to the sleek architecture. The addition of trees introduces a natural element, providing shade and a sense of tranquility. Pathways are thoughtfully designed to facilitate smooth pedestrian movement. Adjacent to the main building, a serene swimming pool enhances the space, serving as both a recreational feature and a calming visual element.
The Andheri Club exemplifies how modern architecture can coexist harmoniously with nature. It is a testament to the synergy between creativity, functionality, and the natural environment, showcasing how innovative design can transform challenges into opportunities.
Project Name: Andheri Club, 2003
Client's Name: Mr. Barve.
Location: Andheri, Mumbai, India.
Area: 18000 sqft
Type: Recreation club.
Status: Complete






