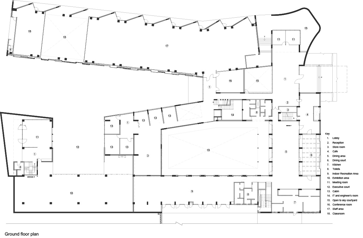
Agrocel House, the headquarters of Agrocel Industries Pvt. Ltd., stands as a remarkable reflection of the evolving Indian rural fabric. Located in Bhuj, this architectural marvel seamlessly blends open, semi-open, and closed spaces, with courtyards serving as the central theme. The building proudly features seven distinct courtyards of varying sizes, each adorned with diverse flora that enrich the experience of the space.
Concept and Layout
The core design concept of Agrocel House revolves around connectivity and harmony with nature. To bring this vision to life, the building’s layout sprawls across a vast plot, folding at calculated angles to create a dynamic and intriguing form. These deliberate folds generate looping spaces that naturally give rise to courtyards. The looping axes of the building ensure that one always encounters an open green space or courtyard while navigating through the premises. Each cabin, office, or staff area has been thoughtfully positioned to remain connected to open or landscaped spaces, fostering a sense of openness and well-being.
Transition Spaces and Local Culture
Incorporating longer transition spaces was another deliberate design choice. These spaces serve as curated galleries for art, information, and stories that celebrate the work of local artists and highlight the richness of the region’s culture. This thoughtful integration transforms hallways and passages into immersive storytelling zones, enriching the experience of the building’s users.
Unique Facade and Play of Light
One of the standout features of Agrocel House is its striking jaali facade. Composed of vertical aluminum members, powder-coated in vibrant shades of blue, orange, and chrome yellow, the facade breaks the monotony of the all-white exterior. This design not only adds a splash of color but also creates an ever-changing interplay of light and shadow within the interiors, adding a layer of visual intrigue.
The Courtyards: Interaction and Spill-Out Spaces
At the heart of Agrocel House are the central courtyard and executive courtyard, which serve as key highlights. These courtyards feature contoured landscapes with in-situ benches, offering employees a versatile space for interaction and relaxation. The front contoured landscape, an extension of the office area, further enhances the building’s functionality. Acting as a recreational space, it accommodates office events, gatherings, and casual breaks. This space also includes a pergola and a serene temple, fostering an atmosphere of tranquility.
Workspaces and Green Integration
Agrocel House’s unique planning encourages employees to step beyond traditional office spaces. By integrating spill-out areas, courtyards, and green zones into its layout, the building redefines work environments. Employees are inspired to work in flexible, refreshing spaces, surrounded by nature. This design not only enhances productivity but also promotes collaboration and well-being.
Conclusion
Agrocel House stands as an exemplar of thoughtful architectural planning and design. By embracing the essence of connectivity, culture, and sustainability, it creates an innovative workspace that reflects the evolving needs of modern offices while honoring the rural and cultural roots of its surroundings.