Add In Architecture
projects
office
contact
Images
Text
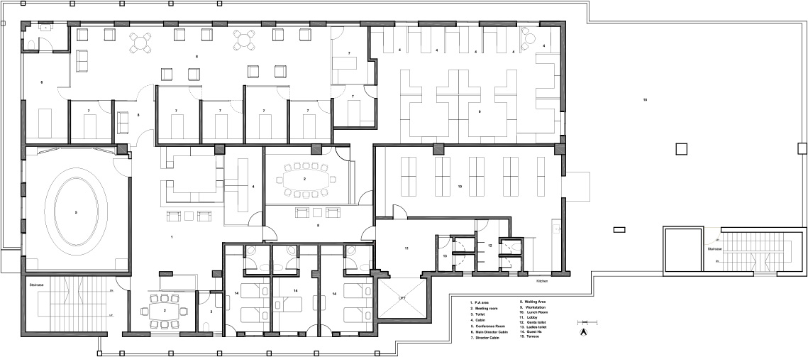
ECCL Mumbai
Project Name: ECCL, 2009
Client's Name: Excel Crop Care Ltd.
Location: Goregaon, Mumbai.
Area: 22000 sqft
Type: Corporate headquarters for ECCL.
Status: Complete
Chandabaug Ler Ghar
Agrocel House
Shrujan Shop
Khandala Bunglow
Agrocel Dhordo
Sumitomo Gajod
ECCL Mumbai
Shitladevi Shopping Complex
Hotel Sayaji Pune
Andheri Club
Chiplunkar Bunglow
Nikesh House
LLDC Museum
Smart
Jayesh House
Hitesh House