The Gajod GMO is a thoughtfully designed ground-floor office building located in Gajod, Gujarat. Built as an extension to the old general manager's office, the structure embodies modern functionality while respecting its roots.
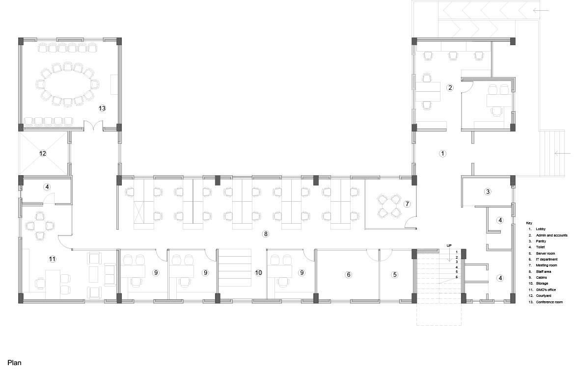
The building is designed in a distinctive C-shape to create a central space that fosters interaction and collaboration among staff, with other functional areas strategically positioned around it. The longitudinal staff area incorporates meeting rooms and the general manager's office, creating an efficient and seamless flow.
Two lobbies connect the separate blocks housing the conference room and the administrative area, ensuring accessibility and clarity in spatial organization. To break the solid form of the structure, pockets were introduced for staircases, entrances, and a serene courtyard adjacent to the GMO's office, adding visual interest and creating moments of pause.
The architectural design prioritizes natural light and ventilation, incorporating 8-foot-high windows throughout the building. These not only enhance energy efficiency but also offer staff members expansive views of the surrounding landscape, promoting a sense of openness and connection to nature.
The Gajod GMO office building strikes a balance between functionality, aesthetics, and sustainability, providing an inspiring and efficient workspace for its occupants.


