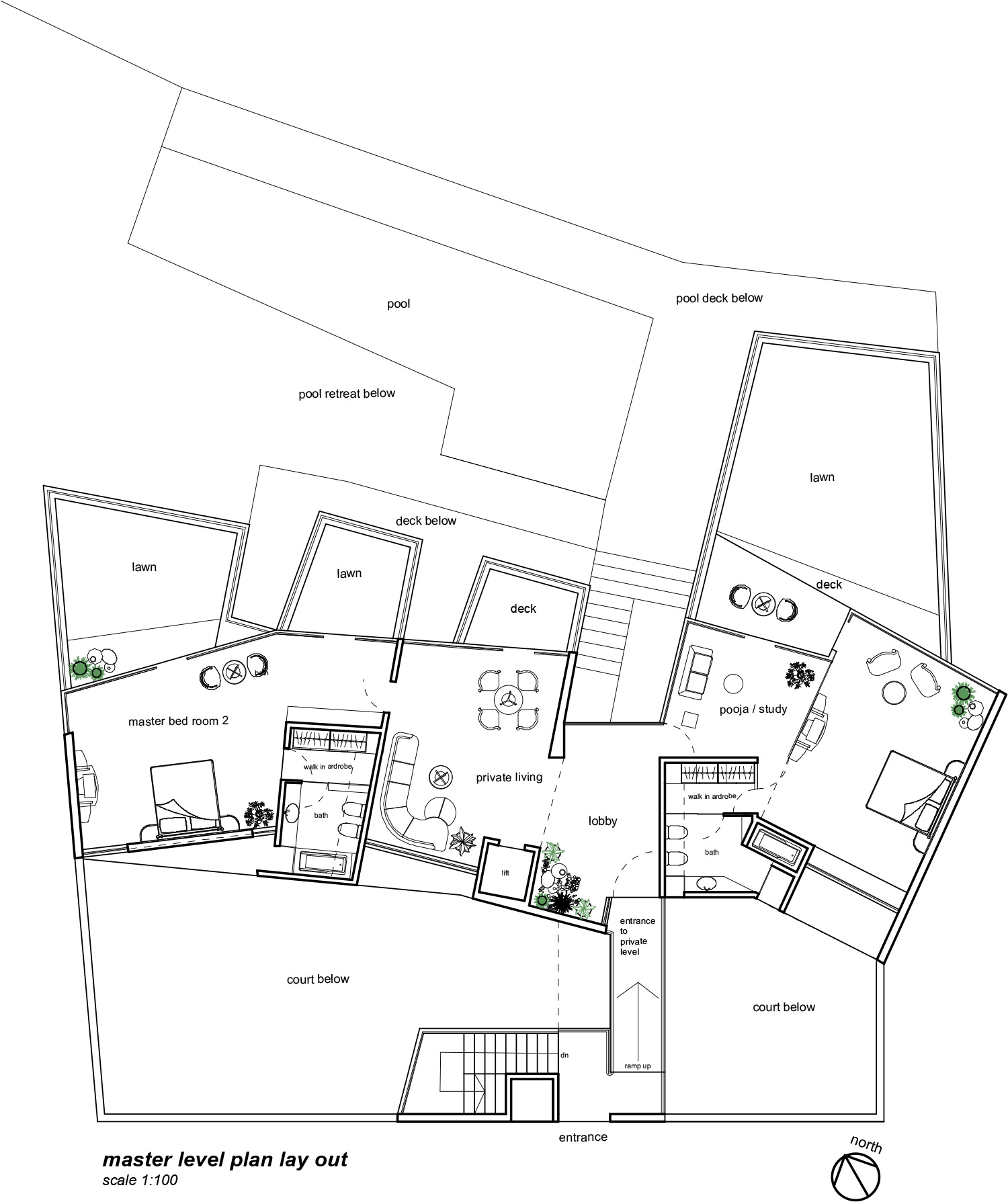
The Khandala bungalow is a modern luxury retreat that harmonizes bold architectural design with the stunning natural beauty of its surroundings. Featuring expansive glass façades and a multi-level layout, the villa offers breathtaking views of the Khandala valley and a nearby waterfall, creating an open, tranquil ambiance.
The design integrates geometric forms, with courtyards seamlessly connecting indoor and outdoor spaces, enhancing the home’s relationship with nature. A perforated feature wall adds privacy while offering glimpses of the structure, complemented by landscaped lawns, vibrant flower beds, and a striking entrance flanked by modern lighting.
Green terraces and sloping lawns not only extend natural beauty into the home but also provide energy-efficient insulation. Double-height interiors and floor-to-ceiling windows flood the spaces with light, amplifying the sense of elegance and grandeur.
The Khandala bungalow is a meticulously crafted haven of modern living, where innovative design meets serene landscapes, offering luxury, sustainability, and harmony.
Project Name: Khandala Bungalow ,2004-2005
Client’s Name: Private.
Location: Khandala, Maharshtra, Mumbai.
Area: 10,000 sqft
Type: weekend house.
Status: Complete















