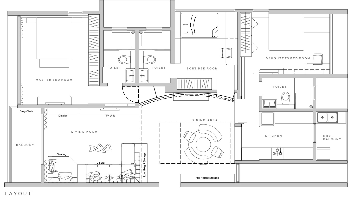
Nikesh’s 3 BHK apartment in Andheri is a perfect blend of modern elegance and personalized comfort. The interiors are thoughtfully designed to create an inviting yet stylish atmosphere, with each room tailored to the preferences of its occupants.
Living and Dining Area
The spacious living room is bathed in natural light during the day, complemented by strategically placed artificial lighting for evenings. A harmonious color palette of gray, blue, and yellow dominates the space, giving it a balanced yet lively feel. The light marble flooring not only adds to the elegance but also enhances the airy vibe of the room.
The dining area is a seamless extension of the living space, featuring a sturdy wooden table paired with plush yellow upholstered chairs. Above the table, a chic modern chandelier with multiple bulbs doubles as an art piece while providing ambient lighting for meals. A standout feature of the dining area is the vertical ridged paneling on the adjacent wall, which adds texture and depth, subtly elevating the design.
Bedrooms
The master bedroom exudes serenity with its muted tones and cozy wooden headboard, creating a tranquil retreat for relaxation. Its minimalist yet warm design adds to the overall charm.
The daughter’s bedroom bursts with a cheerful vibe, featuring a delightful pink and gray color palette accented with playful pops of vibrant hues. The design strikes a perfect balance between youthful energy and sophistication.
The son’s bedroom reflects a sporty aesthetic with a football-inspired theme. Dominated by shades of blue, the room incorporates furniture and decor elements that cater to his dynamic personality, creating a space both functional and fun.
Customization and Cohesion
The apartment’s design stands out for its seamless blend of modernity and individuality. Each room is thoughtfully customized to reflect the personalities of its occupants while maintaining a cohesive aesthetic throughout the home.
Project Name: Nikesh House
Client’s Name: Private .





